type: ontwerp 2021
werkzaamheden: inrichtingsplan | beplantingsplan | lichtobject | bestekscontrole | esthetische uitvoeringsbegeleiding 
team:Andrew van Egmond & studio mars
ism: Lith advies - technische ondersteuning, Hans van Heeswijk architecten,Lichtvormgevers - verlichting, 
opdrachtgever: gemeente Roosendaal
aannemer: Donkergroen - tuinaanleg, Sempergreen - vegetatiematten, Mobilane - gevelgroen, Awood - vlonders
status: opgeleverd 2023
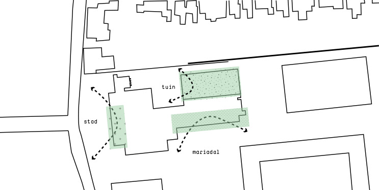
De beplanting van de daktuinen in het stadskantoor (HUIS) van Roosendaal geeft de zakelijke en rechtlijnige architectuur zijn natuurlijke en poëtische tegenhanger. De daktuinen als rustgevende natuurschoon aan elkaar verbonden door gevelgroen zowel buiten als binnenin het stadskantoor
De beplanting van de daktuinen biedt straks de gebruikers van het stadskantoor een natuurlijk beeld uitkijkend over de stad. Op derde verdieping kan je buiten aan tafels vergaderen met op de achtergrond de ruis van de binnenstad te midden van natuurlijke beplanting. Op de vierde verdieping wordt de stilte en contemplatie van het klooster Mariadal naar boven gehaald en is er ruimte voor overdenking in het groen.
Op dichte plekken van het nieuwe stadskantoor is op de bestaande muren gevelgroen geplaatst. Het gevelgroen aan de voorkant knalt eruit en reageert op de kleuren van de lamellen. Het gevelgroen aan de zijkanten is wat ingetogener. Aan de binnenkant in het atrium worden de verdiepingen verbonden door een hoge groene wand in groentinten en bladstructuren. 
Het concept van de daktuinen reageert op de context waarnaar de tuin zich richt. Een doortrekking van de vriendelijke en rustige vlonder als eenduidig beeld hierin. Met op de derde verdieping vlakken ‘uitgesneden’ waar het groen uitkomt. De vierde verdieping langwerpig in vorm met optimaal groen en verschillende zitplekken omsloten door groen en uitzicht over de kloostertuinen​​​​​​​

Het groen bestaat uit een basislaag van natuurlijke vegetatie met daartussen bloembollen en vaste planten voor hoogte en structuur. De basislaag wordt gevormd door een vegetatiemat waarin een samengesteld palet van grassen, kruiden en wilde bloemen zitten in een kokosvezelmat met passend substraat. Hiermee ontstaat gelijk een dicht groen beeld, heeft onkruid weinig kans en is er komend voorjaar direct massa en kleur. 
De natuur kant en klaar op een rol. De vaste planten weerspiegelen de natuurlijke vegetatie van de plek; Pijpenstrootje, Ooievaarsbek, Lievevrouwebedstro als vaste planten en grassen met Bosanemonen en sieruien als bollen en Wilde Gagel en Driebladerige Braakwortelspirea als structuurdragers. Een beeld wat refereert aan een picknick in het gras, alleen dan op 11 of 14 meter hoogte. ​​​​​​​

Projecten

Back to Top